
A refined single-story retreat built for the way Texans want to live now — in a gated Hill Country community outside Johnson City.
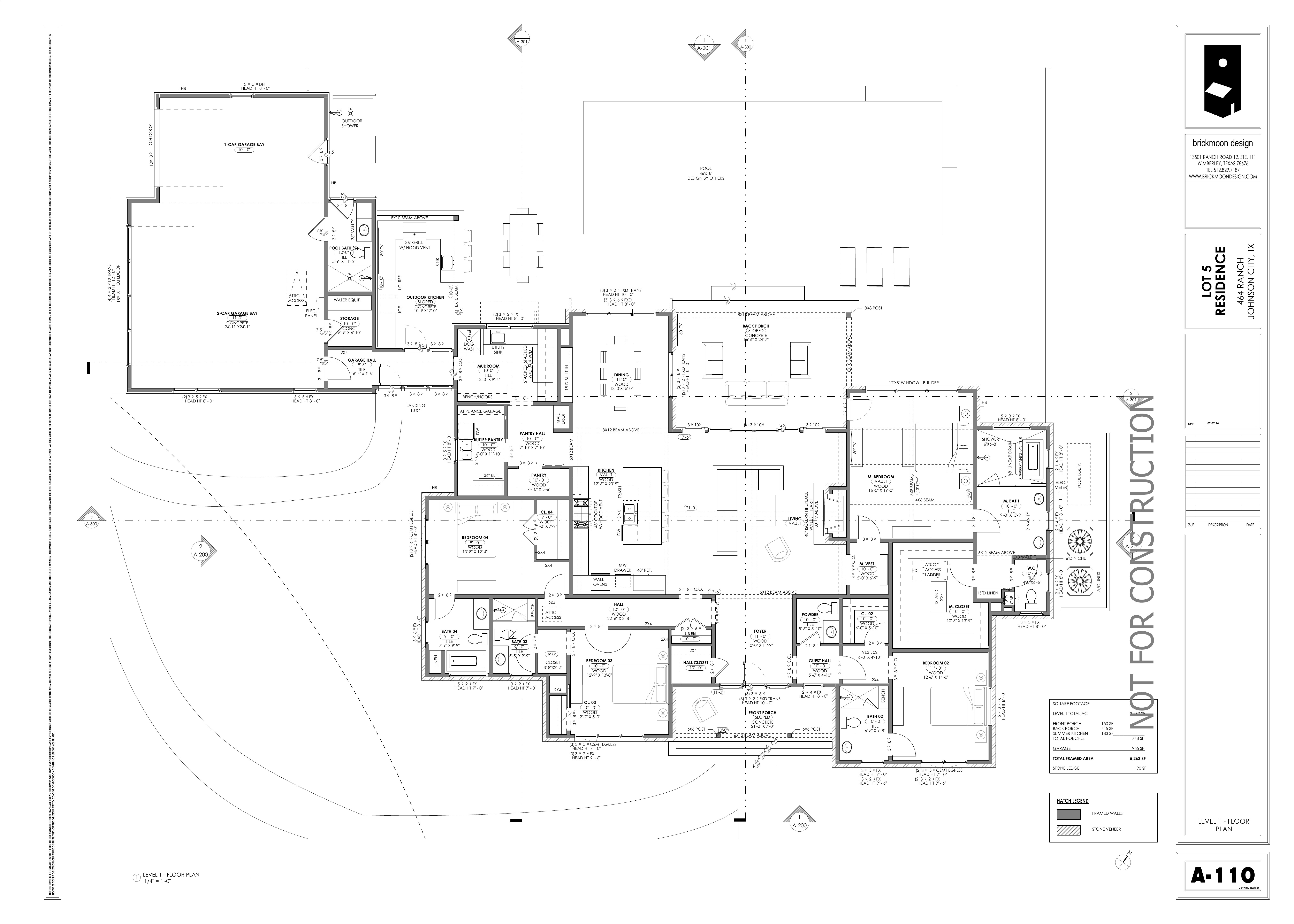
Set within the gated 464 Ranch community, this new residence brings together privacy, architecture, and livability on a 5.06-acre homesite. Designed as a single-story Hill Country modern ranch, the home offers 3,560 square feet of air-conditioned living space, 748 square feet of covered porches, and a 955-square-foot 3-car garage.
The layout was shaped around natural light, generous ceiling heights, and a strong indoor-outdoor connection — equally suited for quiet weekends, full-time living, or entertaining at scale.
Request Full Specifications



The exterior expression is intentionally restrained and enduring. Standing seam metal roofing, painted smooth lap siding, stained wood soffits, wood brace detailing, aluminum-clad wood windows, and stone veneer create a composition that feels both current and rooted in the Hill Country.

"Quiet luxury starts with proportion, materials, and restraint."

748 square feet of covered porch living changes the way a house feels. Morning coffee, dinner outside, game day hosting, and quiet Hill Country evenings all have a place here. The outdoor kitchen, pool bath, and outdoor shower complete a true Hill Country lifestyle setup.

The primary suite occupies its own wing with a vaulted bedroom ceiling, exposed wood beams, large dark-framed windows overlooking the property, and a dedicated vestibule connecting the bedroom to the primary bath and walk-in closet. Direct access to the back porch is included.
"Space, privacy, and a gated Hill Country setting — the experience of this home begins before you ever walk inside."
For many luxury buyers, the alternative is a long design-and-build process with timing risk, cost escalation, and hundreds of decisions. This residence offers a different path: new construction, thoughtful design, durable materials, a premium acreage homesite, and a completed vision ready for the next owner.
Single-story plan designed by Brickmoon Design. The layout separates the primary suite from guest bedrooms, anchors the great room at the center, and connects the kitchen directly to the covered back porch and outdoor kitchen wing.

Every phase of this home has been documented from the first stake in the ground. What you see here is the real work — foundation, framing, sheathing, and the interior taking shape — built by G&W Construction on your 5.06 acres in the Hill Country.


Rebar layout and vapor barrier on the 5.06-acre homesite. The slab footprint covers 5,263 SF of framed area.


Pump truck pour completed at night. Slab cured clean — ready for framing.



Walls up. The footprint of the single-story plan becomes visible against the live oaks and Hill Country horizon.



Hip roof trusses set. The vaulted great room ceiling structure is visible — this is where the 3,560 SF starts to feel like a home.


Zip System sheathing complete. Black Elevate windows installed. The exterior envelope is sealed — the home is weathertight.


Interior walls framed. Vaulted great room with clerestory windows. Electrical, plumbing, and HVAC rough-in underway. Next: insulation and drywall.



HardiePlank siding, Hill Country limestone veneer, standing-seam metal roof, and black-frame windows installed. Exterior envelope complete. Interior insulation and drywall up next.
464 Ranch sits on Ranch Road 2721 outside Johnson City — positioned between Fredericksburg wine country and the Austin metro, with direct access to the Hill Country's best towns, restaurants, and outdoor recreation.
Map shows approximate property location on Ranch Road 2721 · Buyer to verify exact parcel boundaries
New construction on acreage in the Johnson City Hill Country commands a premium — and the market reflects it. The comparables below represent recent new-build and near-new listings within the same submarket. Lot 5 is priced to reflect its 3,560 SF single-story plan, 5.06-acre homesite, 3-car garage, and covered outdoor living — all within the gated 464 Ranch community.
| Property | Community | SF | Acres | Beds/Baths | Year Built | List Price | $/SF |
|---|---|---|---|---|---|---|---|
| 172 Crooked Creek Ct | 464 Ranch | 4,135 | 5.17 | 5 bd / 4 ba | 2025 | $1,925,000 | $466 |
| 577 Cattle Creek Rd | Preserve at Walnut Springs | 2,538 | 6.82 | 4 bd / 4 ba | 2022 | $1,675,000 | $660 |
| 621 Stanton Road | Johnson City | N/A | N/A | 3 bd / 3 ba | 2024 | $1,790,000 | N/A |
| 464 Ranch · Lot 5THIS HOME | 464 Ranch | 3,560 | 5.06 | 4 bd / 3.5 ba | 2026 | Price Upon Request | — |
Comparable data sourced from MLS and public records as of March 2026. All figures are approximate. Buyer to independently verify. Lot 5 list price available upon request — contact G&W Construction directly.
An exclusive 72-homesite community on 5–11 acre ranchettes, 3 miles north of downtown Johnson City. Fully gated and high-fenced, with exotic wildlife roaming the property year-round.
Private tours are available by appointment. Reply for full specifications, pricing, and showing details.
All information deemed reliable but not guaranteed. Buyer to verify dimensions, features, schools, restrictions, taxes, and final installed inclusions. Renderings by Brickmoon Design are conceptual and may not reflect final construction.